por Métrica de Construcción en Salamanca (Salamanca).

en categoría Ofertas construcciones reformas, Ofertas reformas viviendas, Ofertas reformas, Ofertas reforma vivienda, Ofertas planos a escala

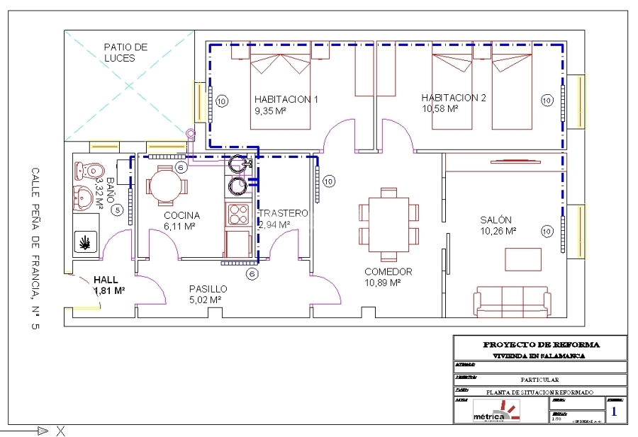
Elaboracion de  planos del estado reformado de su vivienda cuando soliciten presupuesto.  Estudiamos y damos las mejores soluciones tecnicas a su reforma, tanto en divisiones como en instalaciones. Dibujamos el mobiliario a escala para ver como quedaran sus espacios.

Oferta caducada

Otras ofertas

Modern living space 1_603818

Pintura completa de vivienda desde 590€

Pintura completa de vivienda desde 590€. Una forma sencilla de renovar tu casa y mejorar el aspecto…

Oferta publicada por Reformas Manosmaestras S.l en Guipúzcoa

Modern living space 1_603818

No pagas nada por adelantado

Reforma tu casa y no pagues nada por adelantado, con serviobras siempre pagas …

Oferta publicada por Serviobras en León

Reformas integrales en Lleida con promoción especial | ORL Rehabilitaciones

Reformas integrales en lleida con promoción especial

Reformas integrales en lleida con promoción especial | ORL rehabilitaciones En ORL…

Oferta publicada por ORL 360 Rehabilitaciones en Lleida

Modern living space 1_603818

Reforma integral desde 40k

Proyecto de reforma + reforma piso completo. Entraría la reforma del baño integral, cocina integral…

Oferta publicada por Reforma Espacio Raro en Barcelona

Modern living space 1_603818

Reforma

Desde 06/03/2025 hasta 15/04/2026 por la inauguración de la nueva tienda en san ignacio de loyola…

Oferta publicada por Sou9 en Álava

Modern living space 1_603818

Cambio de ventanas y puertas de pvc y aluminio

Descuento del 15% al cambiar todas las ventanas de su vivienda. Descuento a aplicar al total del…

Oferta publicada por Rds Ventanas en León

Modern living space 1_603818

Presupuesto gratis + 10% descuento en reformas integrales

En reformaIA te ofrecemos un 10% de descuento en tu reforma integral si solicitas presupuesto antes…

Oferta publicada por Reformaia en Navarra

Modern living space 1_603818

Reformas de baños por 3.000 euros o menos

Reformamos tu baño por 3.000 euros, precio variable dependiendo de la calidad de los materiales…

Oferta publicada por Autonomos Asociados en Madrid

Modern living space 1_603818

Presupuesto gratuito para reformas integrales en madrid

Ofrecemos presupuesto gratuito sin compromiso para reformas integrales, cocinas, baños y viviendas…

Oferta publicada por Trochez & Torres Reformas… en Madrid

Modern living space 1_603818

Valauni carpinteria de pvc y aluminio

Oferta destacada · cambio de ventanas Cambia las ventanas de tu casa y mejora tu calidad de…

Oferta publicada por Valauni en Illes Balears

Nos complace anunciar la apertura de nuestra sede en Barcelona, y queremos celebrarlo contigo con un 10% de descuento en reformas para tus propiedades.

Apertura en barcelona: 10% de descuento en reformas ????

En sparta reformas & decoración S.L., llevamos más de 10 años trabajando en francia con…

Oferta publicada por Sparta Reformas Y Decoración… en Barcelona

Presupuesto Gratuito

Presupuesto cerrado y gratuito en 48 horas

Presupuesto cerrado y gratuito en en menos de 48 horas, sin compromiso ni sorpresas ocultas. Te…

Oferta publicada por Sixty Deco Reformas En… en Zaragoza