por Refor+ en Las Palmas de Gran Canaria (Las Palmas).

en categoría Ofertas reformas viviendas, Ofertas técnicos, Ofertas reformas cocinas, Ofertas arquitectos, Ofertas ingenieros, Ofertas reformas locales comerciales, Ofertas reformas baños, Ofertas interiorismo

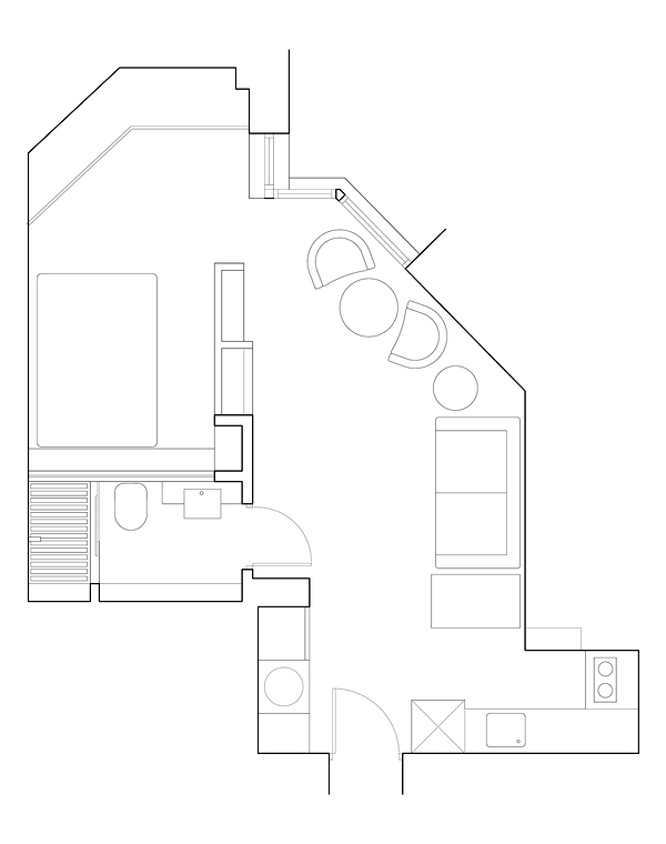
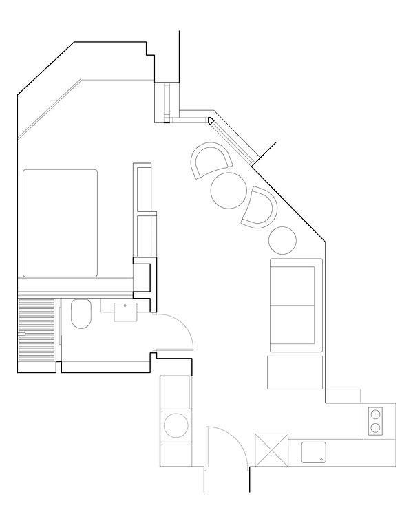
Tenga un croquis acotado de su vivienda por poco dinero

VIVIENDAS: 50€

COCINA: 30€

BAÑO: 20€

LOCAL: 25€

Los planos de vviendas son amueblados y acotados,con dos opciones de distribución,a partir de la tercera tiene un incremento adicional

Oferta caducada

Otras ofertas

Modern House 1_603868

Facturas sin igic

Oportunidad única. Hasta el 31 de julio de 2026, todas las facturas a personas naturales se…

Oferta publicada por Estudio Alto en Santa Cruz de Tenerife

ARQUITECTURA Y DISEÑO

Arquitectura y diseño

Disponemos de un departamento de arquitectura con arquitecto y arquitecto técnico , colegiados para…

Oferta publicada por Constructora Rey en Pontevedra

Modern House 1_603868

Presupuestos a medida

Diseñando aquella casa que mejor se adapte a tus necesidades programáticas y económicas;…

Oferta publicada por Nl Arquitectura en León

Casa Miranda

Estudio económico gratuito y sin compromiso

Tienes pensado hacerte tu nueva vivienda o hacer una reforma de la que ya tienes? nosotros te…

Oferta publicada por FAQ Arquitectura en Sevilla

PROYECTO ÚNICO

Proyecto único

Lo que te ofrecemos no es un descuento a tu proyecto, sino todo lo contrario, le sumaremos toda la…

Oferta publicada por Manuel Navarro. Arquitecto en Málaga

Modern House 1_603868

Precios muy competitivos en trabajos técnicos y construcción

Se realizan trabajos técnicos de redacción de proyectos de edificación y urbanísticos, direcciones…

Oferta publicada por Pcrarquitecto en Sevilla

Luz

Ideas construidas

Ofrecemos y prestamos servicios profesionales, no tenemos un cronómetro en nuestro tablero de…

Oferta publicada por Molinero Arquitectos S.L.P. en Madrid

Proyecto de Ejecución de Vivienda Unifamiliar

Proyecto de ejecución de vivienda unifamiliar

Redacción de proyecto de vivienda unifamiliar y dirección de obra de la misma, a partir de…

Oferta publicada por Villanueva - ARQUITECTOS en Madrid