por Tgac - Trámites y Gestión para Arquitectura y Construcción en Mollet del Vallés (Barcelona).

en categoría Ofertas reforma integral vivienda, Ofertas reformas (obras menores), Ofertas proyecto obra, Ofertas proyecto y reforma integral vivienda, Ofertas distribución interior

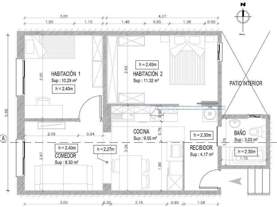
Contrata este verano a través de Habitissimo tu proyecto de obras menores con el equipo TGAC, para la reforma integral de tu piso incluyendo el cambio de distribución interior y aprovéchate de esta inmejorable oferta! Arquitecto técnico a tu disposición para realizar el proyecto de tu vivienda por solo 1.200€!

Oferta caducada

Otras ofertas

Modern living space 1_603818

Descuento de apertura en esta página

Hola a todos motivos de apertura de proyecto nuevo en habitissimo le ofrecemos que contacten con…

Oferta publicada por Reformas &Amp; Servicios Jmf en Toledo

Evita errores costosos en tu reforma por 79€

Evita errores costosos en tu reforma por 79€

Diseñador de interiores especializado en crear espacios elegantes, funcionales y personalizados…

Oferta publicada por Bruno Donizeti Studio en Vizcaya

Modern living space 1_603818

Reformas con presupuesto claro y sin sorpresas

En vertice construcciones y reformas granada S.L. Trabajamos con un sistema totalmente…

Oferta publicada por Vertice Construcciones Y… en Granada

Modern living space 1_603818

Agendado para evaluación de presupuesto

Somos una empresa de 9 años en el mundo de obras y mudanzas, y un factor común es encontrarnos con…

Oferta publicada por LF en Barcelona

Modern living space 1_603818

Pintura completa de vivienda desde 590€

Pintura completa de vivienda desde 590€. Una forma sencilla de renovar tu casa y mejorar el aspecto…

Oferta publicada por Reformas Manosmaestras S.l en Guipúzcoa

Modern living space 1_603818

No pagas nada por adelantado

Reforma tu casa y no pagues nada por adelantado, con serviobras siempre pagas …

Oferta publicada por Serviobras en León

Reformas integrales en Lleida con promoción especial | ORL Rehabilitaciones

Reformas integrales en lleida con promoción especial

Reformas integrales en lleida con promoción especial | ORL rehabilitaciones En ORL…

Oferta publicada por ORL 360 Rehabilitaciones en Lleida

Modern living space 1_603818

Reforma integral desde 40k

Proyecto de reforma + reforma piso completo. Entraría la reforma del baño integral, cocina integral…

Oferta publicada por Reforma Espacio Raro en Barcelona

Modern living space 1_603818

Presupuesto gratis + 10% descuento en reformas integrales

En reformaIA te ofrecemos un 10% de descuento en tu reforma integral si solicitas presupuesto antes…

Oferta publicada por Reformaia en Navarra

Modern living space 1_603818

Presupuesto gratuito para reformas integrales en madrid

Ofrecemos presupuesto gratuito sin compromiso para reformas integrales, cocinas, baños y viviendas…

Oferta publicada por Trochez & Torres Reformas… en Madrid

Presupuesto Gratuito

Presupuesto cerrado y gratuito en 48 horas

Presupuesto cerrado y gratuito en en menos de 48 horas, sin compromiso ni sorpresas ocultas. Te…

Oferta publicada por Sixty Deco Reformas En… en Zaragoza

Herramientas Gratuitas

Herramientas gratuitas

Llévate estos recursos gratuitos que te ayudarán a organizar tus ideas y comprender los fundamentos…

Oferta publicada por Sandra Contreras Arquitectura… en Granada