por Arquitectura Top en Madrid (Madrid).

en categoría Ofertas empresas reformas integrales, Ofertas proyecto y construcción casa, Ofertas proyecto y reforma integral vivienda

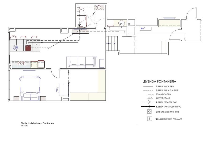
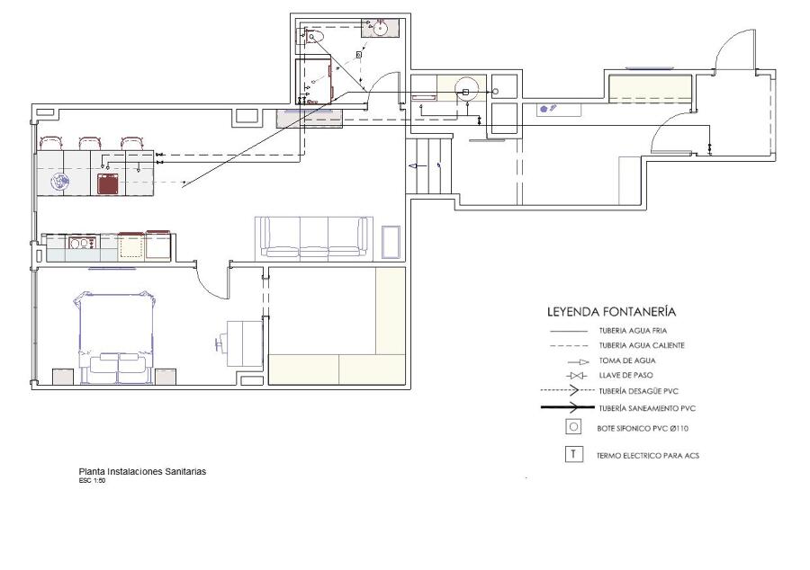
En Arquitectura Top entendemos que cada reforma nace de una idea, de un deseo de cambiar y mejorar tu espacio. Esa idea, la convertimos en realidad a través de planos detallados y un proyecto completo pensado solo para ti.

Pero, ¿y si pudieras ver el resultado final antes de empezar? Imagina poder visualizar con exactitud cómo quedarán cada rincón, los colores, los materiales y el estilo, todo ello antes de que nuestro equipo mueva ni un solo mueble. ¡Así evitamos sorpresas!

Sabemos que una reforma bien planificada es clave. Significa optimizar recursos, evitar pérdidas de tiempo y de material, y tener la tranquilidad de que todo está bajo control.

Por eso, hemos lanzado una promoción exclusiva hasta el 30 de septiembre: al contratar tu proyecto de reforma de vivienda, incluimos las imágenes 3D y renders sin costo adicional. Con esta herramienta, podrás pasear por tu futuro hogar, hacer ajustes si lo deseas, y asegurarte de que cada detalle sea justo como lo soñaste.

En Arquitectura Top, tu visión es nuestra prioridad. ¿Hablamos de tu próximo proyecto?

Oferta caducada